Start
Projekty
Wizualizacje
Oferta
Formularz
Referencje
Kontakt
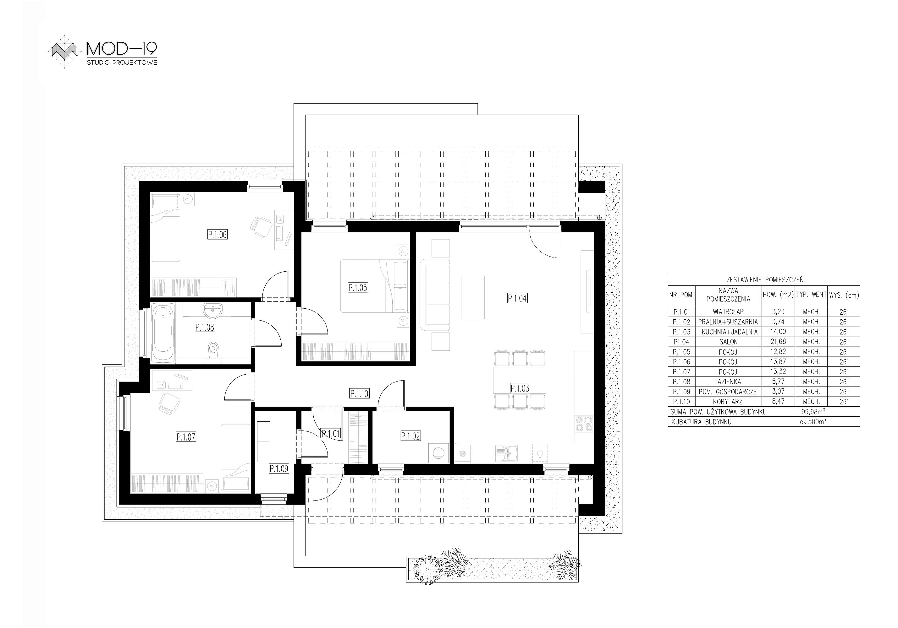
Dom parterowy drewniany w systemie kanadyjskim k. Rybnika
Rodzaj inwestycji:
BUDYNEK MIESZKALNY JEDNORODZINNY
Data:
2017