Start
Projekty
Wizualizacje
Oferta
Formularz
Referencje
Kontakt
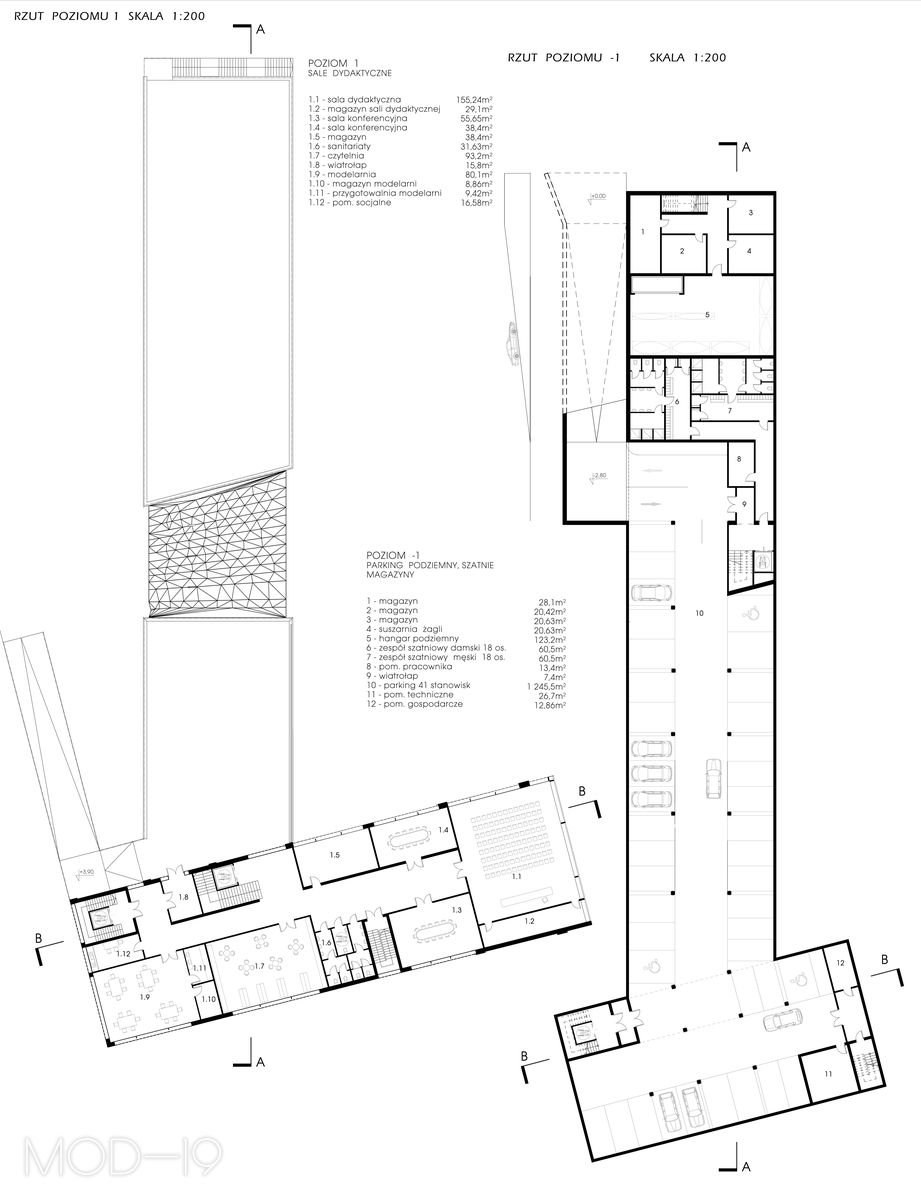
Projekt koncepcyjny Przystań wodna nad zalewem kieleckim
Rodzaj inwestycji:
BUDYNEK USŁUGOWY - SPORTOWY
Data:
2012