Start
Projekty
Wizualizacje
Oferta
Formularz
Referencje
Kontakt
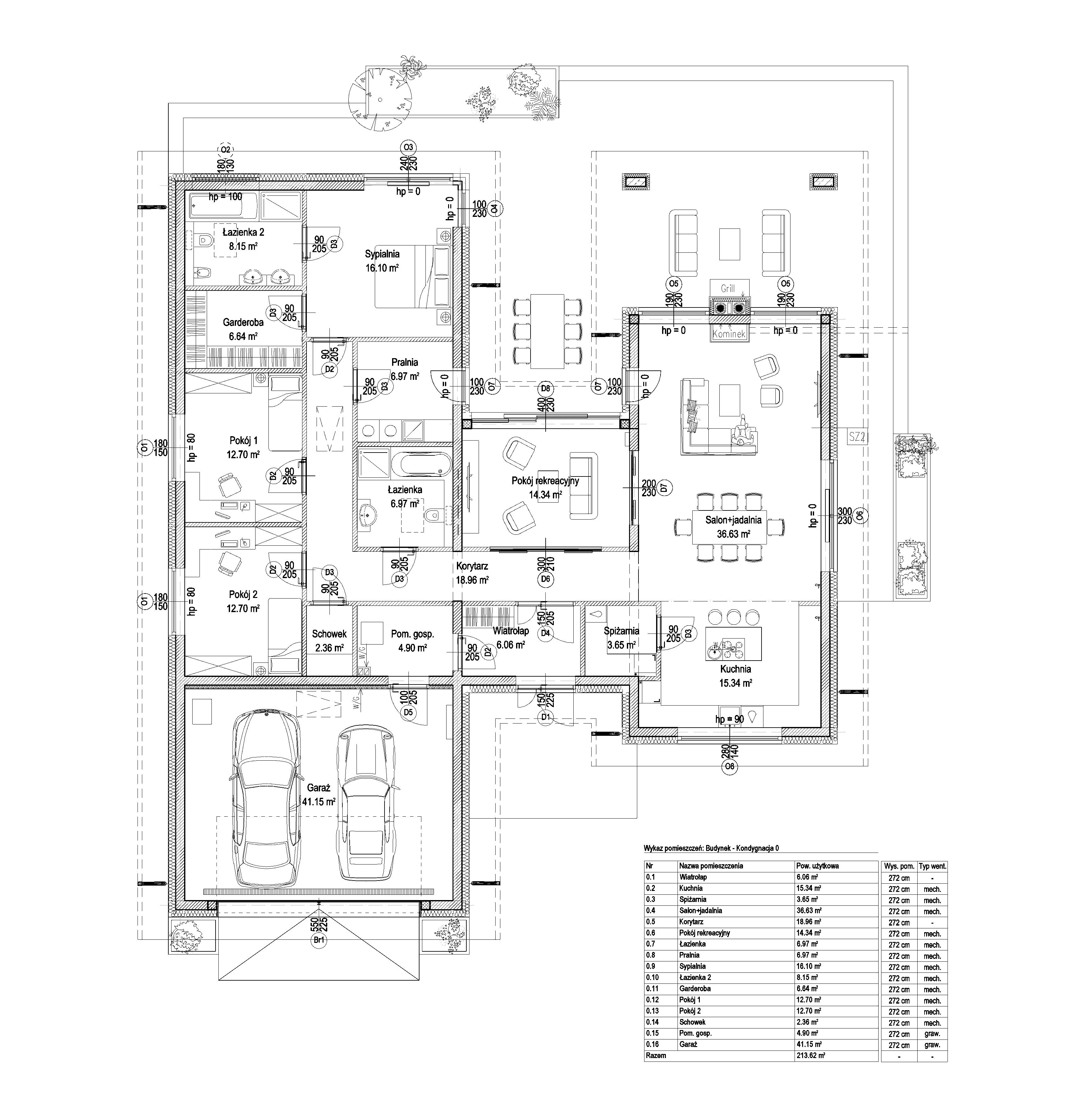
Dom w Gałków Parcela
Rodzaj inwestycji:
BUDYNEK MIESZKALNY JEDNORODZINNY
Data:
2024